3663 W 48th Avenue Vancouver, BC
5 Bedroom Single Family Residence for Sale
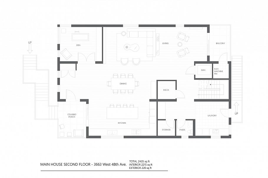
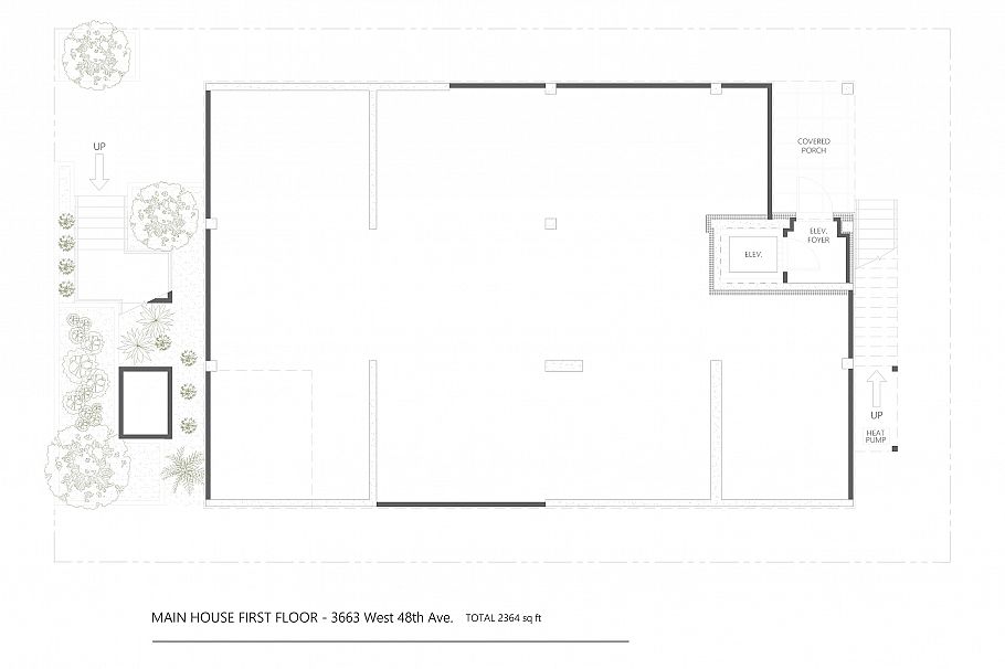
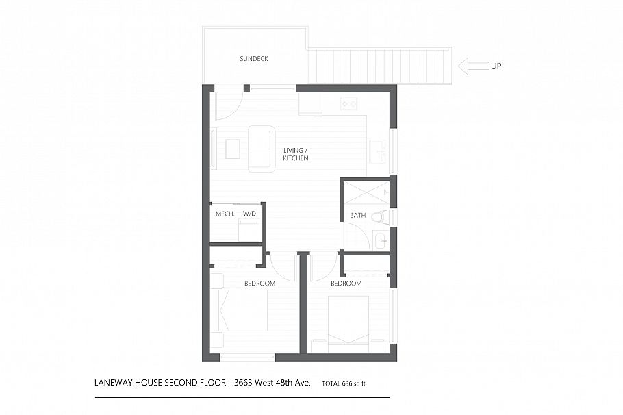
Fabricated steel luxury takes form at 3663 West 48th Avenue, a bespoke Southlands Contemporary residence with a stand-alone laneway home. This custom three-level property blends architectural precision with refined west-side living, featuring oversized triple-glazed windows, a striking floating steel staircase, custom millwork, natural stone surfaces, and wide-plank flooring throughout. The main level is designed for entertaining with oversized living areas, an open-concept chef’s kitchen, and seamless indoor-outdoor flow to covered terraces. Wellness amenities include a deep soaker tub and waterfall shower, while a private rooftop terrace delivers sweeping river and park views. A three-car EV-ready garage, elevator, and flexible lower-level space offer long-term functionality.
Provided by: Oakwyn Realty Ltd.
