1102 3533 Ross Drive Vancouver, BC
2 Bedroom Apartment/Condo for Sale
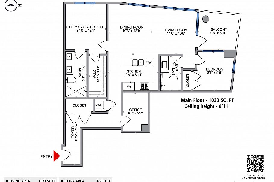
"LUXURIOUS LIVING" THE RESIDENCES AT NOBEL PARK BY POLYGON, LOCATED IN THE HEART OF UBC. NORTHWEST CORNER UNIT WITH 180 PANORAMIC VIEW OF OCEAN, NORTHSHORE MOUNTAINS, FOREST FROM EVERY ROOM. 9FT CEILLING WITH AIR CONDITIONING,PREMIUM TOP NOTCH STAINLESS STEEL APPLIANCES, BRIGHT/SPACIOUS LAYOUT WITH TON OF NATURAL LIGHT FROM FLOOR TO CEILING WINDOWS, OPEN CONCEPT FLOORPLAN, LIVING ROOM FLOW NICELY WITH THE DINNING ROOM. DOORSTEP TO AWARD WINNING WESTBROOK VILLAGE SHOPPING, RESTAURANTS, PARKS, BANKS,BUS LOOP STATION. THE BEST SCHOOL CATCHMENT AREA - UNIVERTY HILL SECONDARY & NORMA ROSE ELEMENTARY. ENJOY THE WORLD CLASS FULL FACILITIES AT UBC. PREFECT "DREAM" HOME IN THE MOST DESIRABLE NEIGHBORHOODS. LOOKING FOR A NEW OWNER WHO HAVE TASTE AND LIFESTYLE.
Provided by: Royal Regal Realty Ltd.Additional Information
Property Location
Property Features
Washer Dryer Dishwasher Refrigerator Stove

