205 1600 Howe Street Vancouver, BC
3 Bedroom Apartment/Condo for Sale
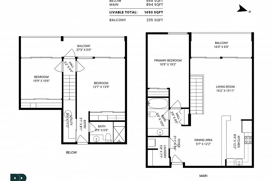
WATERFRONT LIVING on False Creek, this unique and rarely available 2-level, 3 BR, 1453 sq.ft suite is perched along the edge of the seawall with stunning water VIEWS!! Open planned main floor offering entertaining size living space, hardwood floors, 1 BR & renovated spa bath, wonderful balcony to enjoy all year round. 2 more generous size BR’s down with bath with shower, access out from both BR’s to the private 27' patio. The Admiralty is a well maintained, secure & exclusive waterfront building of only 44 homes, 24 hr concierge, 2 Parking, 2 Storage, rentals allowed (6 mos min), sorry no pets, prepaid Crown lease to 2084. Experience this resort style living, walk along the seawall or watch the activity of False Creek and across to Granville Island!!
Provided by: RE/MAX City RealtyAdditional Information
Property Location
Property Features
Washer Dryer Dishwasher Refrigerator Stove Freezer

