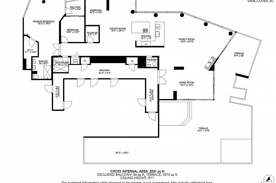
3701 1495 Richards Street Vancouver, BC
3 Bedroom Apartment/Condo for Sale
EXCLUSIVE NEW PRICE! Paradise in the Sky!This One-Of-A-Kind exclusive Beach District Penthouse soars 37 floors above the city with a 1,600SF terrace directly off of the living area overlooking English Bay, Bowen Island & the NS Mtns. Take in incredible sunsets while relaxing in your hot tub overlooking the sparkling city lights. Garden lovers, this is it! A garden in the sky with endless possibilities. This 3 bdrm fully renovated penthouse boasts the whole level with elevators opening up onto your own floor. 360 degree views of English bay, False Creek, George Wayburn & David Lam Parks, enhanced by the Downtown City Lights. Just steps to the new vibrance of the Beach District featuring Fresh St Market, London Drugs & Autostrada, just to name a few.
Provided by: Century 21 In Town RealtyAdditional Information
Property Location
Property Features
Washer Dryer Dishwasher Refrigerator Stove Microwave

