704 89 Nelson Street Vancouver, BC
1 Bedroom Apartment/Condo for Sale
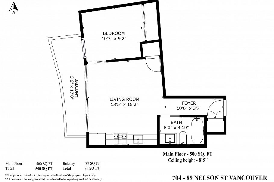
Welcome to The Arc by Concord Pacific – a landmark of luxury living in downtown Vancouver’s Yaletown. This 1 bed unit offers 500 sqft of efficient space with Miele appliances, sleek millwork, a marble bathroom, and a feature TV wall. Enjoy triple-glazed floor-to-ceiling windows with stunning city and water views. The spacious den is perfect for a home office or extra storage. Resort-style amenities include a glass-bottom pool on the 21st floor, view gym, lounge, sauna/steam, and 24hr concierge. Steps to the Seawall, SkyTrain, top dining, and shops. Book your showing today! Optional Purchase Available: 1 EV Parking Stall for $52,000 and 1 Storage Locker for $10,000.
Provided by: RE/MAX Crest RealtyAdditional Information
Property Location
Property Features
Washer Dryer Dishwasher Refrigerator Stove Microwave

