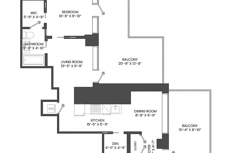
808 1480 Howe Street Vancouver, BC
1 Bedroom Apartment/Condo for Sale
Live in the city's most iconic building- Vancouver House. This oversized 724 sq.ft. 1 BDRM feels like hotel living every day. Featuring a Boffi sleek kitchen with Miele appliances, this unit offers style and functionality. The den is ideal for a home office and the two large patio's (340 sq. ft.) overlooking the tranquil courtyard are perfect for entertaining and gardening. Included is AC, 24hr concierge, and access to the pool and amazing gym. Located near the waterfront paths, beaches and some of the best restaurants, this perfect pied-a-terre or full time residence in one of the most desirable spots. Open House Sunday April 19th, 2:30 - 4:30, just after the Sunrun.
Provided by: Rennie & Associates Realty Ltd.
