1 1166 E 11th Avenue Vancouver, BC
4 Bedroom Half Duplex for Sale
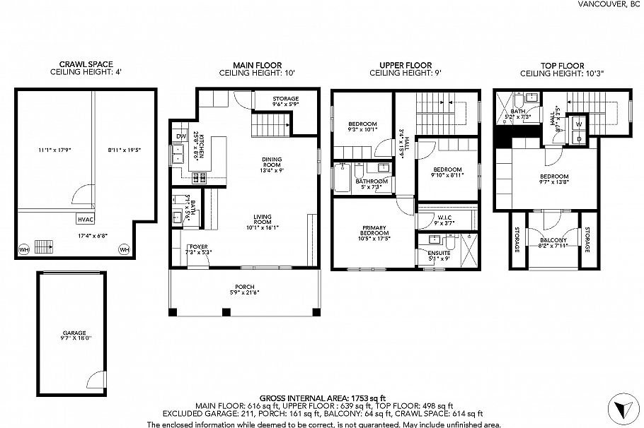
In real estate, checking boxes is a mostly futile exercise, other than the rare occasion when you can truly check them all. This 1,753 sqft duplex in the heart of Mount Pleasant with its character stylings and modern features does just that. Three beds up, you bet; with an additional primary suite above featuring snow-capped mountain views, balcony & storage. A main floor with soaring 10 ft ceilings, dedicated front entry closet & ample space for your dining room table of any shape or size? Got it. You'll still likely entertain at the bar seating in this perfect U-shaped kitchen with integrated F&P appliances, large windows over the sink and warm hardwood floors throughout. Finished crawl space, AC, Integrated Sec/Sound/Vac & smart home tech. Fenced front deck & yard for kids & pets alike.
Provided by: Oakwyn Realty Ltd.Additional Information
Property Location
Property Features
Washer Dryer Dishwasher Refrigerator Stove Microwave

