829 E 14th Avenue Vancouver, BC
5 Bedroom Single Family Residence for Sale
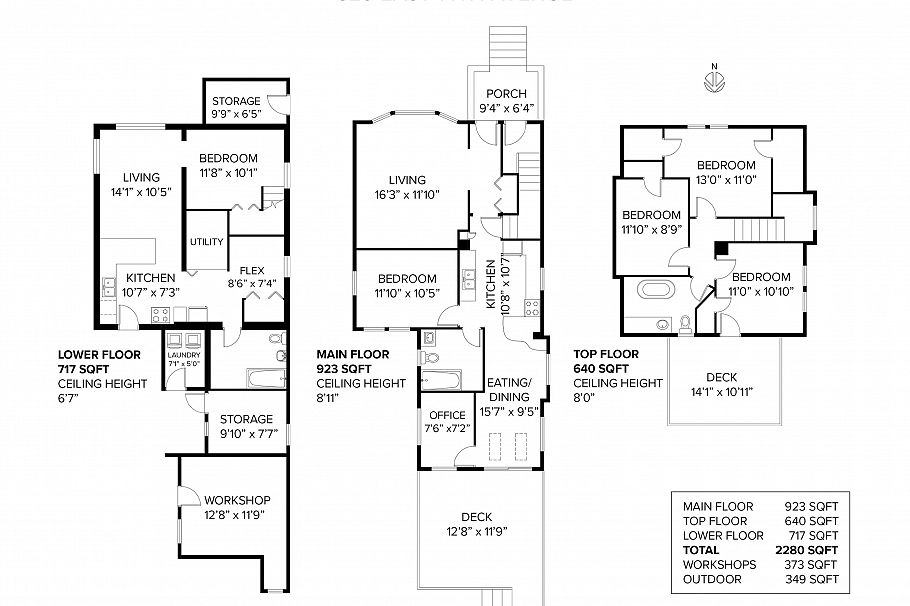
CHARACTER! Beautiful pre-WW1 home w/ vintage details perched at the top of the hill & elevated above the street, offering added privacy, views + light. Top floor has 3 beds +1 bath w/ claw tub. Big deck off bedroom shows off panoramic views. Main floor has it all, grand living room w/ stained glass + over height ceilings, updated kitchen flows into bright dining room w/ skylights & sliding door onto 2nd big deck + a guest bedroom + an office. Original fir floors throughout, heated floors in main floor bath. Fully finished basement easily accessed or closed off from main floor + its own patio. 200 amps. 3 storage rooms incl a big workshop - so much room for your all your hobbies! Great back yard w/ gardens. 2 pkg spots off the alley.
Provided by: Macdonald RealtyAdditional Information
Property Location
Property Features
Washer Dryer Dishwasher Refrigerator Stove

