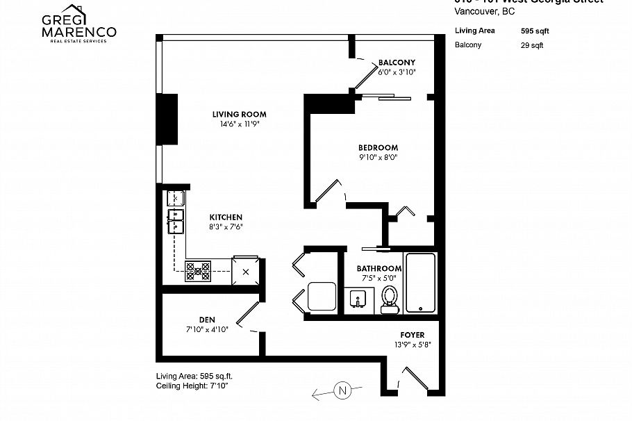
315 161 W Georgia Street Vancouver, BC
1 Bedroom Apartment/Condo for Sale
Welcome to Cosmo by Concord Pacific! This bright corner unit offers nearly 600 sq ft of smartly designed living in the heart of Downtown, steps from Rogers Arena, BC Place, and the Theatre District. Enjoy a spacious bedroom plus flex space, an open kitchen and living area with modern finishings, stainless steel appliances, soft-close cabinets, and sleek laminate floors. Indulge in resort-style amenities: 24-hour concierge, indoor pool, spa, gym, bowling alley, rooftop terrace, BBQ area, and more! Perfect for vibrant city living.
Provided by: RE/MAX Select PropertiesAdditional Information
Property Location
Property Features
Washer Dryer Dishwasher Refrigerator Stove Microwave Oven

