102 725 W 7th Avenue Vancouver, BC
1 Bedroom Apartment/Condo for Sale
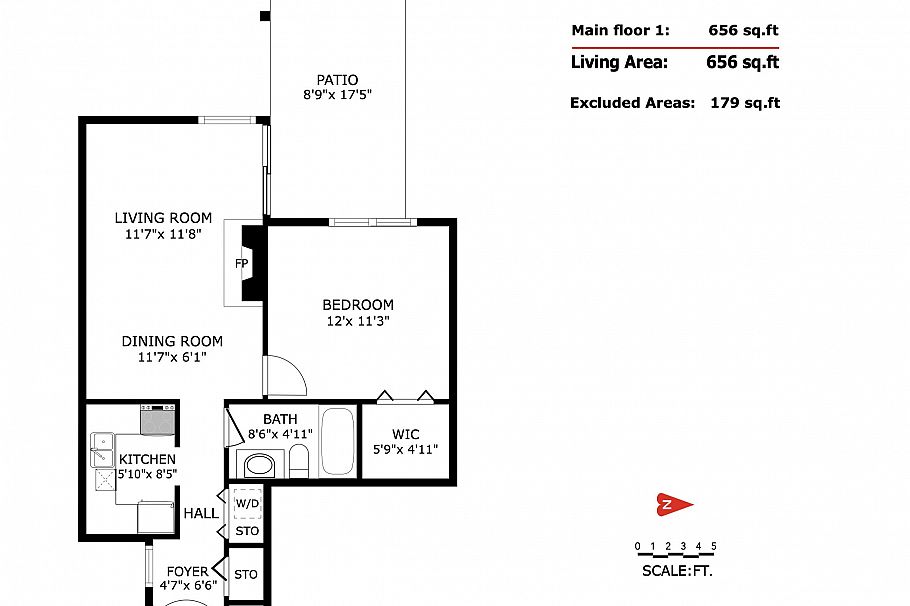
Welcome to The Fountain, a well-maintained and proactive strata in the heart of Fairview. Located on a quiet bike-path street just steps to the Seawall, False Creek, Granville Island, shops, restaurants, and the Canada Line, this home offers exceptional convenience in one of Vancouver’s most desirable neighbourhoods. This bright 1 bed, 1 bath is one of only four west-facing units in the complex. The smart layout offers generous in-suite storage, a huge primary bedroom with walk-in closet, and a large private garden patio with private street access. Updates include new flooring, fresh paint, and stainless steel appliances, plus a cozy gas fireplace. The building is rain-screened, fully re-piped, with all windows replaced, and features a spectacular rooftop deck with amazing city/water views
Provided by: Oracle Realty Ltd.Additional Information
Property Location
Property Features
Washer Dryer Dishwasher Refrigerator Stove

