1261 W 7th Avenue Vancouver, BC
2 Bedroom Townhouse for Sale
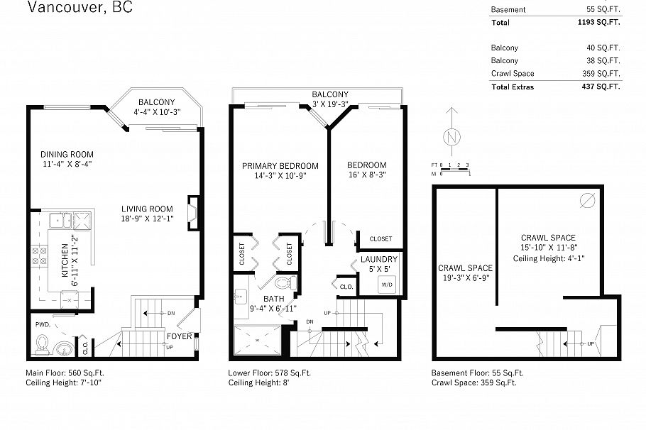
Welcome to a spectacular rarely available townhome situated on a serene, cherry blossom-lined street in the heart of Fairview Slopes. This 1,190sqft home features a breathtaking, panoramic view of downtown skyline & North Shore mountains. Main floor is perfect for entertaining, anchored by a spacious kitchen and an open living area against the backdrop of the city lights. Lower level features two oversized bedrooms and dedicated laundry room. Basement level is a hidden gem w/custom cabinetry, built-in wine rack, & a 359sqft carpeted crawl space w/integrated lighting, perfect for all your storage needs. Steps from the False Creek Seawall, Granville Island, Broadway, Granville/Cambie shopping & new subway station. Open House: Thurs Apr 30, 5-6pm / Sat May 2, 230-430pm/ Sun May 3, 2-4pm.
Provided by: Oakwyn Realty Ltd.Additional Information
Property Location
Property Features
Washer Dryer Dishwasher Refrigerator Stove

