2216 Willow Street Vancouver, BC
4 Bedroom Townhouse for Sale
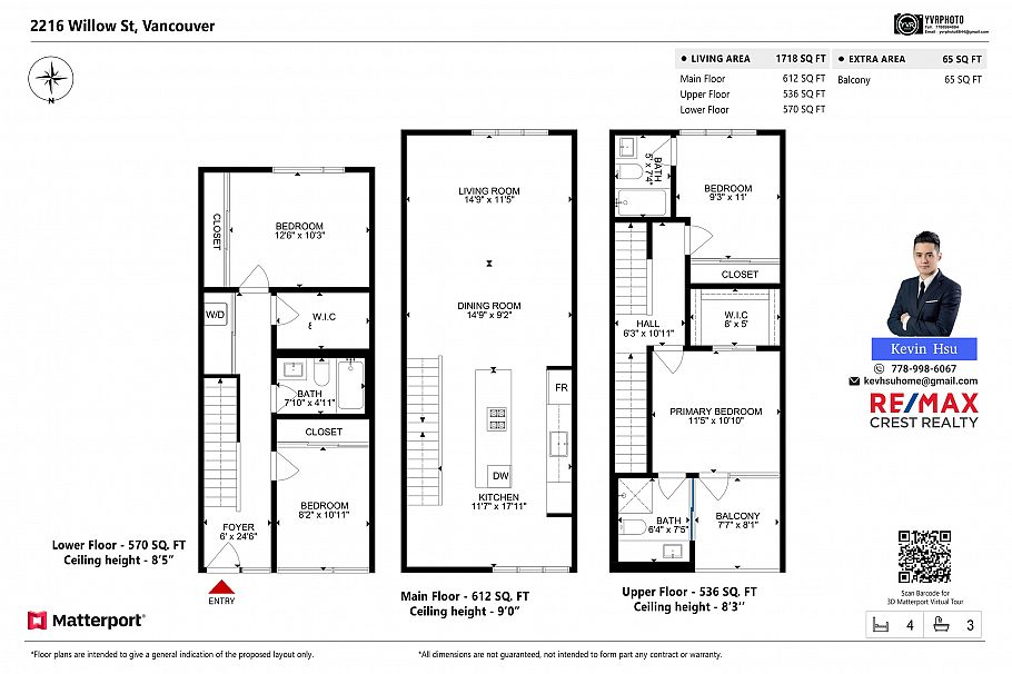
SIXTH+STEEL - Beautiful west coast modern development designed by award winning Michael Green Architecture and built by Kenstone Properties. This unique 4 BEDROOM + DEN (with 2 Parking Stalls + 2 Storage Lockers) townhouse showcases contemporary interior finishes with wide plank brushed oak flooring, radiant heating and HRV system. Bright open layouts with overheight ceilings in the living room, dining room and kitchen. Open concept gourmet kitchen with stone countertops, premium appliances, and custom cabinetry. City and garden view from the private rooftop. Steps away to public transit, retail stores and restaurants. Minutes to Granville Island, False Creek Seawall, and Downtown Vancouver. Open House: Saturday, April 25 | 2:00 PM – 4:00 PM
Provided by: RE/MAX Crest RealtyAdditional Information
Property Location
Property Features
Washer Dryer Dishwasher Refrigerator Stove Freezer Microwave Oven

